Комплексные поставки промышленного оборудования

Станции управления для погружных насосов

 

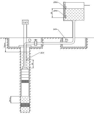
Станция СУЗ предназначена для управления трехфазными асинхронными электродвигателями погружных насосов и защиты их от перегрузок по току, короткого замыкания, неполнофазного режима работы и «сухого» хода.

Предусмотрены автоматический (по уровню и по давлению перекачиваемой жидкости - в режиме водоподъема или дренажа), дистанционный и местный режимы работы.

В автоматическом режиме станция СУЗ обеспечивает управление по сигналам датчиков верхнего и нижнего уровней, установленных в резервуаре, от электроконтактного манометра (тип контактов 3, 4, 5, 6) или от реле давления.

В режиме дистанционного управления станция СУЗ обеспечивает управление по двухпроводной линии (до двух километров).

В режиме местного управления станция СУЗ может включаться и выключаться автоматическим выключателем.

Технические характеристики станций управления СУЗ

Функции и параметры станций

СУЗ-10

СУЗ-25

СУЗ-40

СУЗ-100

СУЗ-200

Номинальное напряжение главной цепи, В

~3 х 380В

~3 х 380В

~3 х 380В

~3 х 380В

~3 х 380В

Мощность управляемого двигателя, кВт

1 - 3

2,2 - 11

3 -13

13 - 45

45 - 90

Максимальный ток главной цепи, не более, А

10

25

40

100

200

Напряжение питания станции, В

220±22

220±22

220±22

220±22

220±22

Напряжение цепи управления, В

12

12

12

12

12

Габаритные размеры, не более, мм

320x330x160

320x330x160

320x330x160

505x460x250

710x680x320

Масса, не более, кг

10

10

10

24

55

Во всех режимах станция обеспечивает:
- отключение электродвигателя при обрыве любой из трех фаз;
- отключение электродвигателя при перегрузке по току (в одной или в трех фазах);
- отключение электродвигателя при отсутствии воды в скважине;
- световую сигнализацию перегрузки по току, неполнофазного режима работы, режима «сухого хода», пониженного напряжения и включенного состояния электродвигателя, а в автоматическом режиме уровень воды в накопительной емкости (относительно датчиков уровней);
- восстановление режима работы после прекращения аварийного воздействия, время задержки включения можно регулировать.
- индикацию потребляемого тока в одной из фаз электродвигателя.

Станция СУЗ имеет встроенный имитатор перегрузки по току, который позволяет настраивать станцию по току электродвигателя без использования дополнительных приборов.

В станции СУЗ предусмотрена блокировка на время воздействия гидроудара. Время блокировки можно регулировать.

В станции СУЗ есть возможность передачи аварийного сигнала за пределы устройства. Все управляющие цепи имеют гальваническую развязку.

Станция предназначена для эксплуатации в закрытых помещениях без искусственного регулирования климатических условий:
- температура окружающего воздуха от -45°С до +40°С;
- относительная влажность воздуха до 98% при температуре +25°С;
- высота над уровнем моря до 1000 м;
- окружающая среда невзрывоопасная, не содержащая токопроводящей пыли, агрессивных газов и паров.

  

Рис. 1. Принципиальная схема установки насоса ЭЦВ со станцией управления СУЗ

Новости